昆明海荣滇池澜庭售楼处电话(售楼中心地址)营销中心首页网站→24小时热线电话
扫描到手机,新闻随时看
扫一扫,用手机看文章
更加方便分享给朋友
海荣滇池澜庭售楼处电话0871-6633-0577【售楼中心】
金牌置业顾问19987733102
本项目暂不接受临时到访,过来参观样板房请记得提前来电预约!
为您安排楼盘现场销售全程接待并讲解,给您更贴心的看房体验!
【项目位置】昆明·滇池畔·金桂街与古滇路交叉口·梅子村地铁站口
【开发商】海荣集团
【总占地】67亩
【建面】201485.24㎡
【物业】万科物业
【物业费】2.36元/㎡
【容积率】3.5
【绿地率】37%
【在售地块】一期7,12栋;二期2、6栋
【在售产品】住宅
【在售面积】
2栋:中户:101 、108 、 131㎡
7栋:中户:108㎡;端户:128㎡
12栋:中户:111㎡;端户:131㎡
6栋:中户:111㎡;端户:131㎡
【总楼栋层高】15层/25层/30层/28层
【T户比】7栋、12、6栋2T4户; 2栋 2梯5户
【装修标准】毛坯
【交房时间】一期25年3月,二期25年9月
海荣集团 复合型城市运营专家
海荣集团成立于1999年,是国家一级房地产开发企业
2005年荣获华人民共和国建设部颁发“中国知名地产品牌”称号
2011-2016年连续6年入围陕西省房地产企业综合实力TOP10
地产为基 八大业务跨界资源整合
海荣集设两集团下大板块,分别是负责城市建设的海荣城发和产业投资的海荣创投,以房产开发为基础,其他八大产业为支撑,助力新兴产业投资与发展为目标,成为一家多元化发展的的企业集团。
精耕24年 如期品质交付
海荣集团多省市累计开发建设30余个项目。荣膺陕西省房地产企业综合实力10强,当前集团旗下拥有数百家分公司,涉猎20余种行业类型。

距滇池约1km 高端人居代名词
本案位于滇池之滨,距滇池直线距离约1km;滇池是昆明“四季如春”的秘诀,滇池孕育了昆明适宜的气候,滋养了昆明千百年的鸡犬相闻,阡陌交通。滇池海岸线上豪宅密布从草海、到三个半岛,每一席皆是人居标杆,昆明豪宅价格天花板,人居因水而贵。
斗南花都作伴,开昆明国际之窗
项目与斗南鲜花交易市场仅一街之隔,斗南片区,凭借享誉世界的鲜花产业链,让昆明继99世博会之后,再次吸引世界的目光。呈贡斗南花卉小镇不仅是全国唯一国家级花卉交易市场,更是国际级花卉交易中心、全球花卉企业总部区、国家“4A”级文化文化旅游管理景区,2023年以来,日均客流近3万。
当前斗南片区正打造规划“斗南花卉小镇”,构建花卉交易、物流、研发全产业链和融合旅游、文化、健康的立体大花卉全产业链,致力把小镇打造成为“世界第一的花卉交易中心”、“亚洲第一的花卉产业研发创新高地”和“中国第一的花卉特色小镇”。
六大湿地公园环伺 乐享生态宜居
项目周边生态资源优越,捞鱼河湿地公园、斗南湿地公园、滇池生态湿地公园、王官湿地公园、海东湿地公园等六大湿地公园将项目环保其中,出门即湿地;滇池环湖生态带6.29万亩,土地不可复制,资源不可再生,一席难求,值得珍藏。
与地铁距离约50米 真正的地铁物业
项目距地铁4号线梅子村站约50米,真正地铁物业,无缝畅达主城、机场、高铁站,交通优势明显,生活畅达自如,出行无忧,高效串联全城。
六大商圈环伺 吃喝玩乐购无忧
两公里内辐射万达广场、七彩云南第壹城、吾悦广场、沃尔玛生活广场、金龙农贸市场、斗南花卉市场等六大商圈,自配超约12万方商业,未来将依托海荣品牌资源,打造国际化商街,不仅满足社区需求,更将为片区商业加码。

民大附小旁 出家门入校门
项目与云南民族大学附属小学斗南校区约100米之距,让孩子近享优质教育。作为云南作为云南民族大学高位引领及资源助推下的一所高品质小学,曾被评为“云南民族优秀文化教育示范学校”。对于拥有优教资源的住宅而言,不仅让孩子赢在了起跑线,也让资产在市场拥有强保值的属性。
甲级医院保障 24小时健康守护
项目东侧约2公里,位于富康路上建有昆明市延安医院呈贡医院(呈贡区人民医院:二甲医院)。项目东侧约5公里,位于春融东路上还建有昆明医科大学第一附属医院(云大医院:三甲医院)。项目东南侧约5公里处,位于联大街上还建有昆明市中医医院(三甲医院)、昆明城东医院。健全三甲医疗配套,24小时守护全家人的健康。
围合式布局规划景 超大楼间距
滇池澜庭采用板式围合建筑布局,大面积中庭景观,以宽阔楼间距让空间顺应自然的呼吸、光照与取景,舒适、愉悦的空间,风、光、景的设计,大幅度提高房屋的采光与通风,入目所及皆满园绿意与生机。

五大景观主题打造 全龄园林景观设计
滇池澜庭将环境融于景观之中,打造五大景观主题——疏林漫步、儿童天地、邻里私语、轻氧运动、时光草坪。通过毗邻社区公园、便捷繁华集市、尊贵递进的归家礼序、感受四季时光变化和舒适的中庭林下空间和多彩邻里共享空间打造特色的“五重景观体系”。给予业主带雅致舒适的、全龄功能和注重自然生态的社区生活。


随着人居生活水平的不断提升,架空层在业主健康和生活品质方面有了更多的倾注,逐渐演变成了大人物们在闲暇时享受生活的小圈子。本案规划大面积架空层,打造书画吧、棋牌室、健身吧、午后茶吧、萌宝乐园、社区活动室等空间,无限延展生活乐趣。

观滇板式华宅对话天与地 臻藏花与海
于滇池边打造建面约98-128㎡观滇板式华宅。采用更舒适的全明板式设计,超大可拓展面积。所有产品卧房与卫生间皆为全明设计,同时规划可拓展空间的飘窗,空间高赠送率;产品设计约6m以上轩阔宽境阳台;横厅设计,彰显尺度空间;高可拓展空间、高得房率,每一寸空间都不被浪费。
万科物业 一级物业资质保障
滇池澜庭与万科物业携手,以住宅、资产、智能科技、生活、睿服务·三大管家等五大服务体系,为泊心社区业主带来真正的滇畔繁花心级居家体验,帮助客户解决更多元的生活需求。
项目地块总平图
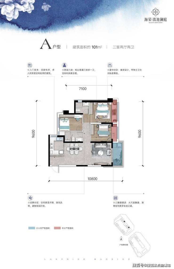
户型图鉴赏
售楼处咨询专线0871-6633-0577【售楼中心】
金牌置业顾问19987733102
声明:本文由入驻焦点开放平台的作者撰写,除焦点官方账号外,观点仅代表作者本人,不代表焦点立场。
