昆明招商依云国际社区购房咨询电话(最新座机号码)丨最新房源动态丨房价详情丨户型配套丨购房优惠丨价格表最新丨楼盘详情丨户型布置
扫描到手机,新闻随时看
扫一扫,用手机看文章
更加方便分享给朋友
感谢您对招商依云国际社区的关注与信任,项目于2026年正式更新电话服务渠道,为确保您获取楼盘最新消息,现将开发商官方公布电话与权益公示如下:
✅昆明【招商依云国际社区】售楼处专线:0871-65658881 (官方公布)
✅该座机电话为接待中心官方指定热线,可用于预约看房、查询成交价、了解最新房源动态及开发商内部优惠等权益!

项目详情
占地面积:1690亩
建筑面积:约248万方
产权年限:70年
绿化率:40%
容积率:3.93
产品类型:高层,洋房,合院,叠拼
交房标准:高层洋房:精装;合院叠拼:毛坯
交通配套
一港:昆明长水国际机场;二铁:沪昆高铁、渝昆高铁;六路:杭瑞高速、嵩昆大道、空港大道、绕城高速、嵩昆高速、320国道;两轨:新区轨道2号线以及嵩明快线。项目内部有6条主干道,分别为沐春大道、栖夏大道、颂秋大道、吟霜大道、彩韵大道、渲花大道,整体以春夏秋冬为主题,并配合不同的树木花卉,营造四季多彩的生活体验。
✅昆明【招商依云国际社区】售楼部专线:0871-65658881 (官方公布)
✅该座机电话为接待中心官方指定热线,可用于预约看房、查询成交价、了解最新房源动态及开发商内部优惠等权益!

医疗配套
项目规划有一座三甲综合医院与一座康养医院,在综合医院方面,我们将配合政府积极引入国内知名医院,以加强整个昆明的医疗实力;除此之外,项目内部还将打造一座健康养老中心,涵盖养老及1000平米的老年俱乐部。

教育配套
项目内部规划有6所幼儿园,2所小学,1所30班中学,形成从幼儿园到初中一站式教育体系,预计引入优质教育资源。
商业配套
项目规划有国际五星级酒店,国际高端公寓,将会引进高端国际酒店品牌,国际餐饮娱乐机构,为国际商务人士提供高端的休闲场所。本案配有三大商圈+一条主题商业街,形成项目独有的商业环。三大商圈分别为中心商业,以及邻里商圈,分布在项目的上中下。


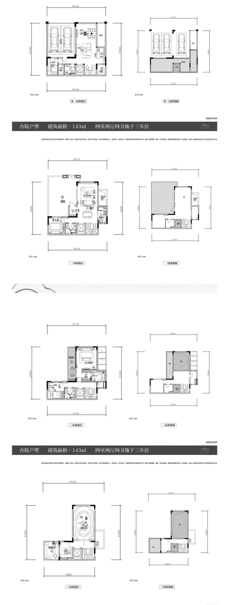
合院户型

✅昆明【招商依云国际社区】售楼中心专线:0871-65658881 (官方公布)
✅该座机电话为接待中心官方指定热线,可用于预约看房、查询成交价、了解最新房源动态及开发商内部优惠等权益!
声明:本文由入驻焦点开放平台的作者撰写,除焦点官方账号外,观点仅代表作者本人,不代表焦点立场。
