【最新发布】2025昆明中建金科向山的岛售楼处电话丨中建金科向山的岛售楼部地址丨楼盘位置丨详情丨项目动态
扫描到手机,新闻随时看
扫一扫,用手机看文章
更加方便分享给朋友
中建金科向山的岛售楼处电话:0871-6633-0577
金牌置业顾问:19987733102(微信同步)
售楼中心地址:0871-6633-0577(致电发送详情地址)
北市区是昆明主城跨越二环后,居住人口越来越多,居住密度越来越大,“高容积率、高层、刚需”是片区内大部分住宅产品的标签。
项目位于北部山水新城,项目地块东临金家山、西临绕城高速,距离昆明瀑布公园较近,自驾沿北京路延长线转至芳林路,再直行即可到达项目售楼部。

公共交通方面,目前到项目仅有Z65路这一条公交线路,乘坐Z65路公交至新龙路中段站,下车向新龙路与芳林街交汇处前行约160米可达。
地铁方面,项目到最近的地铁站2号线北部汽车站步行距离近3km。
项目总占地约246亩,绿地率40%,最大容积率2.5,整体为南北朝向,规划有高层、小高层及合院,总户数3424户,车位配比约为1:1.3。
项目自身规划了社区底商,即岛12商业街,配2000㎡的生鲜超市,为居民日常生活所需提供服务。
项目围绕建筑打造了6个小型景观公园,还有一个30亩的牧野公园把高层建筑与合院分隔开。

商业配套方面,自身配套主要为社区底商,2000平米的生鲜超市,距离稍近的霖雨桥中汇商业中心、和谐世纪也在5公里左右。
医疗配套方面,规划中的昆明市第二人民医院(三乙医院)就在项目附近,建成后步行可达,此外距离甘美医院也较近,
教育配套方面,项目周边有云师大附中、师范大学实验小学、昆明市政府机关幼儿园等学校。
生态景观配套方面,项目背靠金家山,靠近瀑布公园(约750米)、龙泉银杏公园,加上项目自带的公园,生态宜居属性较强。
项目规划有20栋高层住宅,高层梯户比为2梯6户/2梯4户,精装交付。还规划有大平层(即小高层)及合院,大平层为1梯2户。
建面87㎡,小三房设计,一个卫生间,整体空间布局紧凑,动静分区,双阳台设计充分保证通风采光。
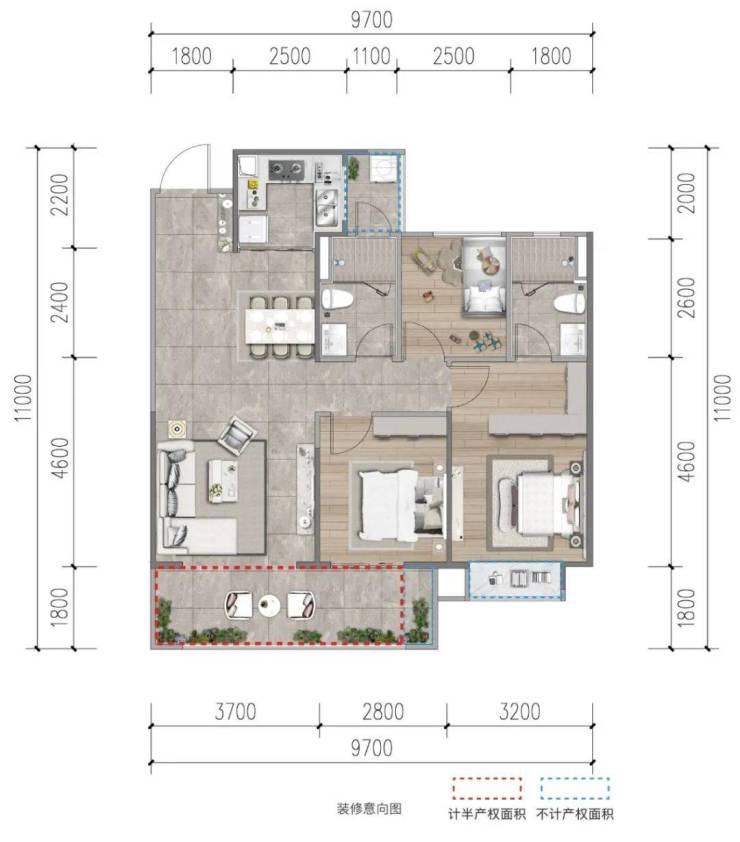
建面约105㎡,三房两厅两卫设计,南北通透,同样动静分区双阳台。

建面约115㎡,四室两厅两卫设计,南北朝向,动静分区,主卧带卫生间,客厅超大阳台,设计合理,无空间浪费。




中建金科向山的岛售楼处电话:0871-6633-0577
金牌置业顾问:19987733102(微信同步)
售楼中心地址:0871-6633-0577(致电发送详情地址)
声明:本文由入驻焦点开放平台的作者撰写,除焦点官方账号外,观点仅代表作者本人,不代表焦点立场。
