那山那海-大理(那山那海)首页网站-2026最新房价+户型图+小区环境+配套
扫描到手机,新闻随时看
扫一扫,用手机看文章
更加方便分享给朋友
一、项目简介
项目名称:那山那海(推广名)
开发商:百悦(大理)旅游开发有限公司
项目规模:首批规划1300亩
产权性质:40年产权、商业用地
二、首开区茫涌里133亩介绍
开盘时间:
第一批次预售证取证时间2022年6月28日
第二批次预售证取证时间2023年3月21日
交房时间:
2024年6月30日交付
交付标准:全部产品赠送精装修,不含软装
楼栋总数:25栋
总户数:464户
容积率:0.62
绿化率:35%
物业费:3.8元/㎡/月(星空院),4.8元/㎡/月(爱丽舍)
地上车位184,地下车位95
三、二期上阳里90亩介绍
开盘时间:
预售证取证时间2023年11月30日
交房时间:
预计2025年11月30日交付
交付标准:全部产品赠送精装修,不含软装
楼栋总数:26栋
总户数:141户
容积率:0.34
绿化率:35%
物业费:4.8元/㎡/月
车位141个
四、项目优势
苍山下,洱海西,莲花峰下,茫涌溪旁
海西片区,大理古城、喜洲古镇之间的核心地段
【项目内配套齐全】
LULUZOU、安尕SPA(已经投入使用)
芒涌市集(预计2024年6月30日投入使用)
业主餐厅(预计2024年6月30日投入使用)
社区服务中心(预计2024年6月30日投入使用)
【酒店配套类】
丽思卡尔顿酒店五星级酒店入驻
【艺术配套】
艺展中心(预计2024年6月30日投入使用)
【运动配套】
滑板公园、3V3篮球场地(已经投入使用)
五、户型介绍
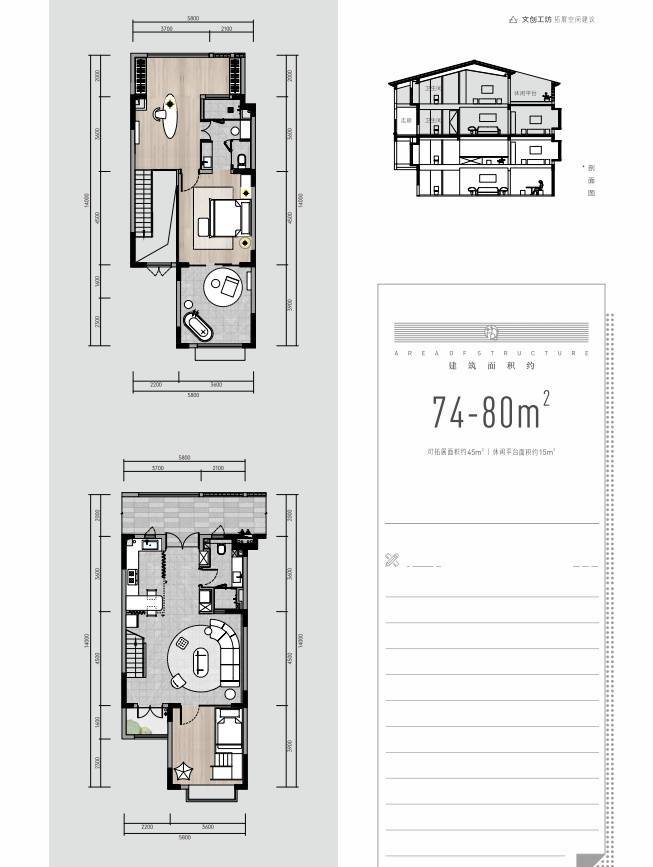
茫涌里【星空院上院】
三种拓展方案可供选择
建筑面积约74㎡,实际使用面积约134㎡
不看海约135万/套,看海约160万/套(折后价格)
配置电动观景天窗、配水暖地暖
茫涌里【星空院下院】
建筑面积约64㎡,实际使用面积约122㎡和花园面积约35㎡
总价150万/套-170万/套
前后双花园、配水暖地暖
茫涌里【爱丽舍A户型】
建筑面积约90㎡,实际使用面积约175㎡和花园面积约47㎡
总价240万/套-300万/套
独院产品,有天有地、配水暖地暖
茫涌里【爱丽舍B户型】
建筑面积约79㎡,实际使用面积约158㎡和花园面积约41㎡
总价200万/套-260万/套
独院产品,有天有地、配水暖地暖
上阳里【那山舍A户型】
建筑面积约140㎡,实际使用面积约160㎡
前庭后院,庭院面积约60-200㎡
总价350-500万/套(折后价格)
平层别墅,有天有地,观山看海、配水暖地暖
上阳里【那山舍C户型】
建筑面积约217㎡,实际使用面积约240㎡
前庭后院,庭院面积约200-300㎡
总价800-900万/套(折后价格)
独栋别墅,超大庭院,有天有地,观山看海、配水暖地暖
声明:本文由入驻焦点开放平台的作者撰写,除焦点官方账号外,观点仅代表作者本人,不代表焦点立场。
