2026大理买房必看!大华山海映深度测评:房价合理性+户型实用性+周边配套成熟度解析
扫描到手机,新闻随时看
扫一扫,用手机看文章
更加方便分享给朋友
一、项目基础信息
【品牌简介】
大华集团·中国城市更新运营商
总部位于上海,专注“高质量城市运营”,擅长城市更新、超大规模社区建设运营,城市别墅及精品项目开发等,深耕全国五大区,以平方公里的恢弘版图,焕新美好生活。
【项目简介】
项目由大华集团开发,坐落于下关城市核心地段,与大理州博物馆书香文脉为邻,坐享西洱河畔繁华璀璨风光,尽览苍山洱海大美景观。揽超五星级君悦酒店(规划中)重磅配套,享高奢装修品质与国家一级资质大华物业尽心服务。
【基础信息】
【产品类型】超高层
【占地面积】约39亩
【建筑面积】约24万方(住宅约11万方)
【土地年限】70年住宅
【梯户情况】2T2户、2T4户
【楼层情况】酒店:180米大理第一高楼,住宅:31-34层
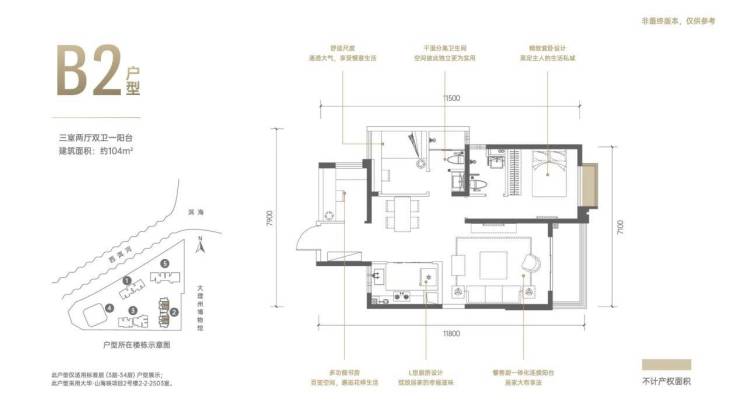
【户型面积】建筑面积约104-130㎡、建筑面积约192-209㎡、建筑面积约213-262㎡
【装修情况】全装修交付
二、项目详情
【资源占位】项目位于大理州博物馆旁,紧邻网红兴盛桥,拥揽西洱河,下关最后一块可开发临海地块。楼下即为洱河森林公园,与洱海直线距离约0.5KM,举目湿地,远眺苍山、洱海,自然资源优越。坐享团山公园、洱海生态廊道,收藏大理山、河、湖、湾最美风景。
【便捷交通】项目以兴盛路、泰安路、洱河南路、洱河北路、宾川路形成了三横两纵的交通网络体系,在下关核芯,串联大理州全域。从项目出发,直线距离约2.2km便能到达大理高铁站;直线距离约11km便能到达大理机场;直线距离约12km便能到达大理古城及各风景名胜区。
【商业配套(外部)】项目下楼即为沃尔玛,南侧为昆百大;东侧为中红海峡广场,北侧为爱琴海购物中心,享受下关醇熟商圈。周边铂尔曼酒店、英迪格酒店等便捷环伺。
【商业配套(内部)】项目自配社区商业,打造多功能的复合空间,大幅缩短业主生活半径的同时,进一步夯实社区的商业配套,为业主提供多元、全能的美好生活。
【教育配套】项目旁人文气息浓厚,下关二幼(直线距离约0.3KM)、州四幼(直线距离约1.3km)、下关七小(直线距离约0.7km)、下关八小(直线距离约0.7km)、大理州民族中学(直线距离约0.9km)、下关一中初中部(直线距离约1.7km)、下关四中(直线距离约2.5km),下关一中高中部(直线距离约1.9KM),可以满足小孩3-18学龄教育(注:教育、招生政策以当年教育主管部门官方发布为准)。
【健康配套】距项目直线距离约0.2KM为州体育馆,包含篮球场、足球场、健身广场等内容;直线距离约1.1km为市医院、直线距离约1.5km为大理大学附属医院(三级甲等)、直线距离约2.1km为州人民医院(三级甲等);享受下关城区健康配套系统。
【景观园林】提取自大理文脉与白族文化,营造 “寻音•山林间、拾音•云水处、回音•层云上”三大主题景观。栽种山茶、银杏、冬樱花等四季珍贵苗木,辅以奢石造景,营造层次分明的四季景观,构建人与自然的生活意境。
【君悦酒店】
君悦酒店遍布世界主要门户城市以及度假胜地,坐落于全球经济和本土文化交织的繁华地带。凭借独特魅力和精巧设计,每一间君悦酒店均成为其所在目的地的迷人新地标。为全球旅行者将行者之梦筑入现实,开启卓越非凡的旅程。
大华携手君悦落子大理,酒店位于项目之中,拟打造180米大理第一高楼,重塑大理看世界的高度,共包含324间客房、空中会所、空中餐厅、空中泳池、空中健身房等内容,结合君悦享负盛名的服务标准及大华对设计、品质与实用性的完美追求,势必成为大理市高端生活场景中最佳之选。
上海金茂君悦大酒店
台北君悦酒店
三亚海棠湾君悦酒店
大理君悦酒店
【观山面海阔境私宅 户型鉴赏】
声明:本文由入驻焦点开放平台的作者撰写,除焦点官方账号外,观点仅代表作者本人,不代表焦点立场。
