邦泰花园城官方售楼处电话-怎么样-降价了吗-户型-房价-物业费-户型价格-交房时间-特惠好房-开发商直销
扫描到手机,新闻随时看
扫一扫,用手机看文章
更加方便分享给朋友
邦泰花园城售楼处电话:0871-6633-0577
金牌置业顾问:19987733102(微信同步)
售楼中心地址:0871-6633-0577(致电发送详情地址)
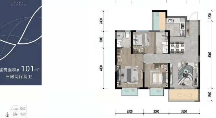
项目概况(邦泰·花园城三期)
【项目占地】:约29亩
【绿地率】:约40%
【建筑密度】:约17%
【车位配比】:约1:1
【产品类型】:高层住宅
【交付标准】:毛坯
【开发商】:邦泰集团
【物 业】:邦泰物业
项目周边交通网络四通八达,为业主的出行提供了极大的便利。多条城市主干道环绕,无论是自驾前往城市的各个角落,还是选择公共交通出行,都能轻松实现。附近公交站点线路繁多,为日常通勤提供了多样选择。规划中的地铁 9 号线公园北站紧邻项目。地铁的开通将进一步拉近邦泰花园城与城市其他区域的距离,极大地提升出行效率,让您轻松融入城市的快节奏生活,无论是前往市中心的繁华商圈,还是奔赴工作岗位,都能在短时间内抵达。
健康是美好生活的基石。但随着区域的不断发展,医疗配套也在逐步完善。同时,便捷的交通网络使得业主能够快速前往市区的大型综合医院和专科医院,为家人的健康保驾护航。无论是日常的健康检查,还是突发疾病的救治,都能在短时间内获得及时、有效的医疗服务,让您安心生活,无后顾之忧。
邦泰花园城深知教育对于孩子成长的重要性,周边教育资源丰富。分布着9个幼儿园,如马金铺乡中心幼儿园、昆明市高新区小百合幼儿园等,为孩子的启蒙教育提供了良好的选择。小学方面,有昆明高新第四小学、马金铺乡化城中心小学等 3 所学校。中学则有昆明高新区第三中学。从幼儿园到中学,一站式的教育体系,让孩子在家门口就能接受优质的教育,为未来的发展奠定坚实基础。

在购物方面,项目周边共有2个购物中心,如廊桥阳光购物公园、美丽故事 (廊桥阳光购物公园店) 等。还有多达88个超市,像鑫瑞超市、明庭超市等。在这里,您可以尽情享受购物的乐趣,满足日常生活的各种需求。无论是时尚的服饰、新鲜的食材,还是各类生活用品,都能轻松购置。闲暇时光,您还可以与家人朋友一起在购物中心享受美食、观看电影,度过愉快的休闲时光。
邦泰花园城,以其卓越的区位优势、便捷的交通网络、优美的生态环境、完善的配套设施、匠心独运的产品设计以及贴心的物业服务,成为昆明理想人居的典范。如果您渴望拥有一处理想的家园,邦泰花园城期待您的到来,一同开启美好生活的新篇章。





邦泰花园城售楼处电话:0871-6633-0577
金牌置业顾问:19987733102(微信同步)
售楼中心地址:0871-6633-0577(致电发送详情地址)
声明:本文由入驻焦点开放平台的作者撰写,除焦点官方账号外,观点仅代表作者本人,不代表焦点立场。
